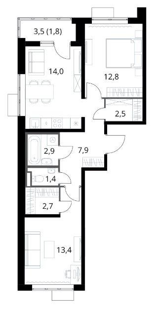
Двухкомнатная квартира в новостройке 59,40 м2 по ул. Южная 7 за 11769000 руб.

Адрес
Адрес Южная, 7
Описание
Цена 11 769 000 р. (198 131 р./м2)
Подать заявку на ипотеку
Количество комнат Двухкомнатная
Этаж 7
Этажность дома 24
Общая S, м2 59,40
Жилая S, м2 0,00
S кухни, м2 0,00
💰 Рассрочка, все виды льготной ипотеки, сертификаты. 🏠 Жилой комплекс класса комфорт плюс 1-й Донской расположен в 7 км от МКАД по трассе М-4 Дон. В нем сочетаются все плюсы комфортной городской среды и природного окружения. Зонирование и озеленение территории, теплые цвета на фасадах отражают природу Дона. Низкоэтажная коттеджная застройка рядом с ЖК рождает ощущение простора. Ассоциации усиливают река Купелинка и Пуговичинский пруд с экологичным обустройством собственной набережной. И самое главное, детство здесь по-настоящему счастливое. ✅ ОТДЕЛКА чистовая включает: Входная металлическая дверь и межкомнатные двери. • В санузлах выполнена укладка напольного покрытия — керамогранита, стены облицованы керамической плиткой. Установлены ванна, умывальник, смесители, унитаз, полотенцесушитель. • На кухне, в коридоре и в комнатах кварцвиниловое напольное покрытие. • Выполнена разводка электрики, установлены электрощиток, выключатели, розетки, точечные светильники (санузел, коридор). • Выполнен монтаж натяжного потолка во всех помещениях. Возможен вариант с предчистовой отделкой white box — это возможность сделать дизайн квартиры на свой вкус, избежав самых трудоемких и дорогих работ черновой отделки. Остается только поклеить обои или покрасить стены и выполнить укладку финального напольного покрытия. Система «Умный дом»: защита от протечек и возгораний, контроль водо-и электроснабжения, управление светом, розетками и совместимыми бытовыми приборами. ✅ ИНФРАСТРУКТУРА На территории жилого комплекса: собственная муниципальная школа на 1300 мест, 2 детских сада на 300 и 350 мест, амбулатория. А еще: игровые и развивающие площадки из эко-материалов для детей разных возрастов; спортивные площадки; беседки, навесы и качели для уединённого отдыха и работы; торговый центр с примыкающей «Площадью Событий»; площадка для выгула собак. Ключевые гипермаркеты расположены ближе к МКАД: Ашан — в ТРЦ Вегас, Метро в совхозе им. Ленина, Лента в Видном. ЖК «1-й Донской» разместился на берегу большого Пуговичинского пруда чистой реки Купелинки: - Бережно благоустроенная прибрежная зона для активного и спокойного отдыха детей и взрослых - Удобные широкие пешеходные тротуары и велодорожки - Маршруты для скандинавской ходьбы - Игровые и спортивные площадки из эко-материалов для детей разных возрастов - Беседки и качели для уединённого отдыха Закрытая территория, двор без машин, камеры на детских площадках — в ЖК «1-й Донской» предусмотрено всё для безопасной и спокойной жизни. - Светлые сквозные подъезды с панорамным остеклением: 2 выхода для быстрого доступа во двор, на парковку, к придомовой территории. - Колясочные и велосипедные комнаты с системами хранения. - Уборные в подъездах для комфортных прогулок без частой необходимости возвращаться домой. - Безбарьерная среда: нет высоких порогов, ступеней и других препятствий для детских колясок и жильцов с ограниченными возможностями. - Рабочая зона-коворкинг с розетками для жильцов во 2 корпусе. - Лапомойки для собак. - Место для организации ресепшена или комфортной зоны ожидания. - Подземный паркинг. ✅ РАСПОЛОЖЕНИЕ Жилой комплекс «1-й Донской» расположен в центральной части Ленинского городского округа Московской области в 7 км от МКАД по трассе М-4 Дон. В 1 км от района уже строится южный дублер МКАД — Южно-Лыткаринская автомагистраль (ЮЛА). Комфорт для пешеходов - 15 минут пешком до ЖД-станций «Калинина» и 5 минут автомобилем/12 минут маршрутным автобусом до «Расторгуево» нового маршрута наземного метро МЦД-5. - 15‑20 минут на общественном транспорте до станций метро Домодедовская, Царицыно, Зябликово, Красногвардейская и Аннино. - В 2027 году будут открыты станции Лебедянская и Липецкая новой Бирюлевской линии метро (10‑15 минут) Удобство для автомобилистов - 7 км до МКАД по трассе М-4 Дон (4‑6 минут) - 5 км до Каширского шоссе - 1 км до Южно-Лыткаринской автомагистрали. Южный дублер МКАД соединит г. Видное с Симферопольским, Варшавским и Каширским шоссе. ✅ ПОКУПАТЕЛЮ: - Бесплатное сопровождение сделки; - Любая форма расчета (рассрочка, семейная и военная ипотека, сертификаты); - Выгодный тариф на страхование; - Гарантия юридической чистоты сделки -214ФЗ; РАБОТАЕМ ДЛЯ ВАС С ЗАБОТОЙ И БЕЗ КОМИССИИ! id: 32171
Квартира в новостройке в Санкт-Петербурге
Дата 01.07.2025 23:18:30
Объявление № 22715129
Дата подачи:
2 июля 2025 г. 3:18
Дата обновления:
2 июля 2025 г. 3:18
Просмотров 13 Хотите продать быстрее?

Продавец
Агентство недвижимости:
Андреева Ирина Сергеевна
email: 89225397055avega@gmail.co m
Показать номер телефона
Пожаловаться
Комментарии:
Добавить